HCP
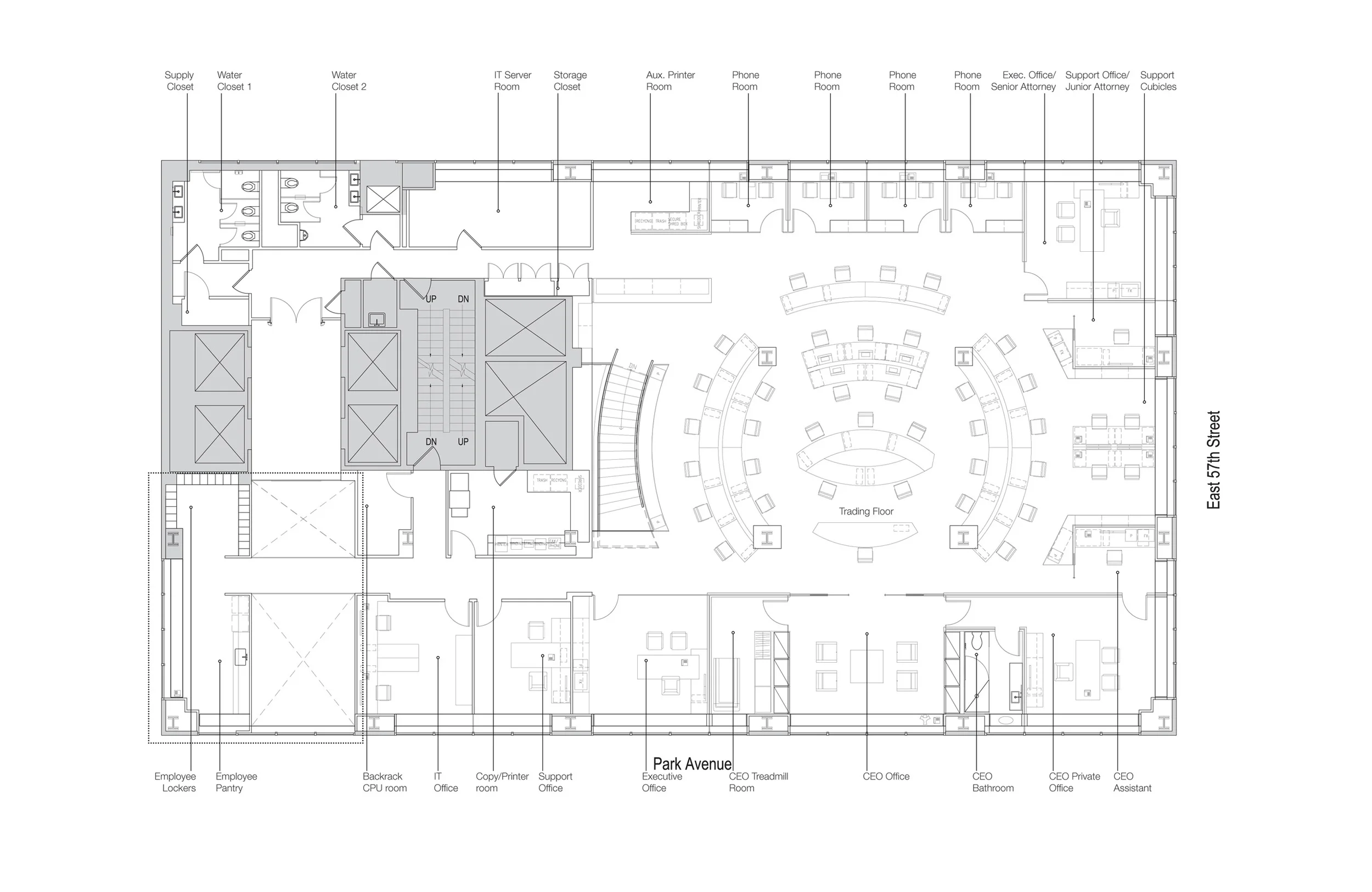
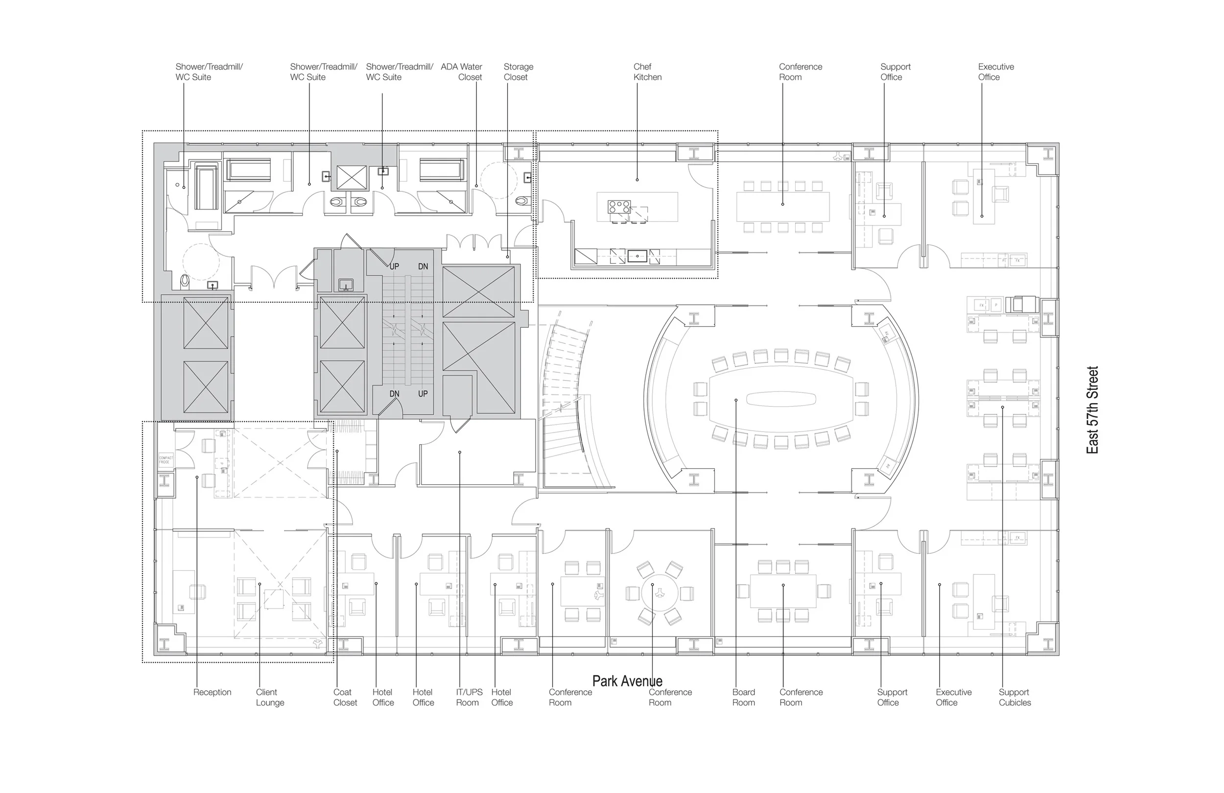
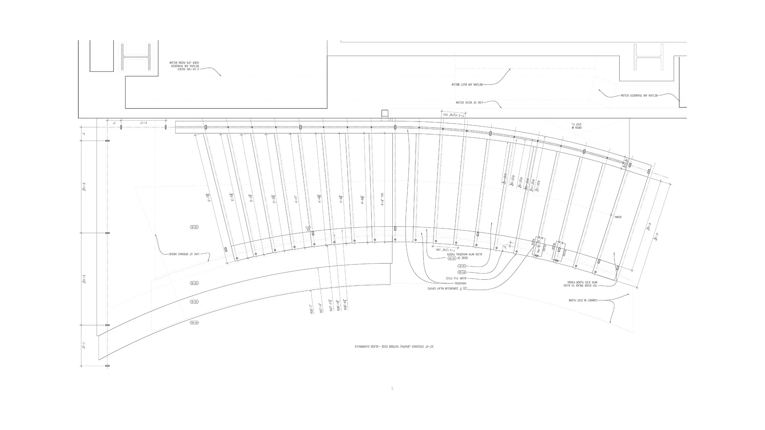
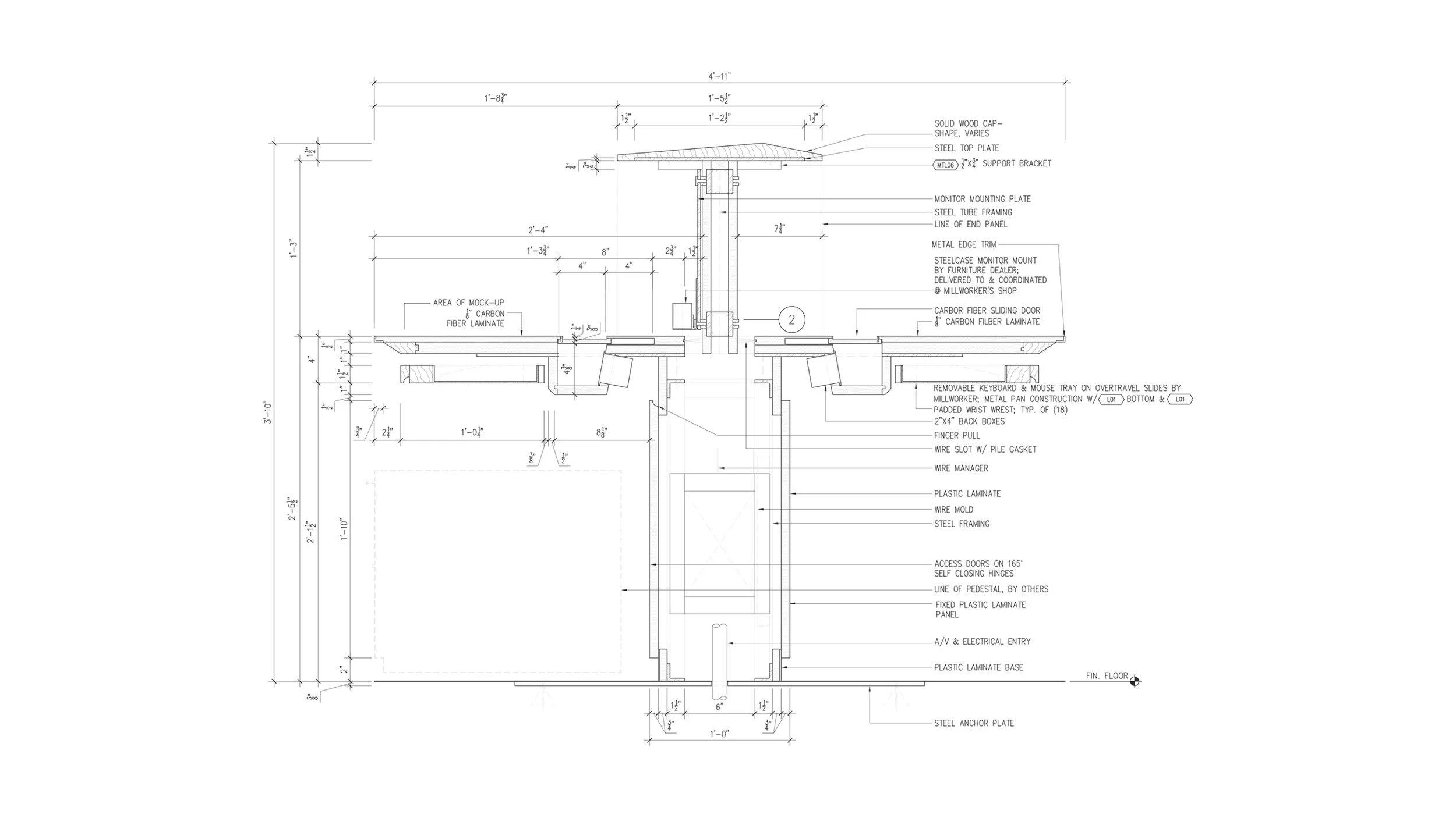
This client’s specific workflow was studied to produce a trading floor layout based on a highly dynamic and tactical network similar to that of team sports. High-performance mechanical systems and a luminous ceiling create the ambient conditions for productivity, while a flexible layout accommodates different numbers of employees. The design of trader workstations has been created to function as an integrated system in concert with the interior architecture. This trading area is surrounded by support workstations and offices, and a stair that provides access to a lower floor containing executive offices, conference rooms, and a boardroom. The space is designed to convey the sense of a stable yet agile institution with an entrepreneurial spirit. This modern solution uses clean lines, natural-hued materials, and an efficient and visually pleasing office layout to present a suitable corporate image.
