Occupant - Cyrus Capital & Partners
Cyrus Capital & Partners is a new start up hedge fund capital investment
firm that occupies the two top floors at the Lever House Building in New York City. Cyrus is represented as a dynamic and adaptive company, who can maneuver in the fluctuating sea of the global market. The interior represents this capability of acting to the present situation as well as giving priority to the people who have a relationship with Cyrus, either as an employee or a client.
“The Medium is the message” Marshall McLuhan
“It was precisely organization that was communicated
-as message and medium, image and effect, form and function-” Reinhold Martin, the Organizational Complex
Strategic planning : Flexibility + Individual Specificity
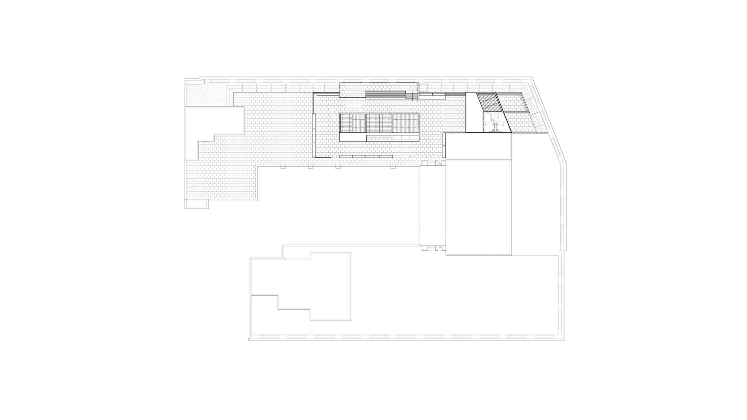
Corporate architecture has since its development taken its form from efficiency and optimization. Curtain wall design, mullion spacing has direct relationship to the individual workstation behind it. The mature modular system developed during the 1950’s also attempted a further internalization of capitalist growth by inscribing “flexibility” into every surface of the office.
Cyrus tries to incorporate an organizational model that is flexible and provide individual specificity, that allows growth, both expansion and collapse of the corporate structure. Its organization provides a platform that allows for growth from sixty seats day one, to about 90 seats day two and a total of 120 seats day three without loosing its essential organizational clarity.
Tactical Operations
In addition to the long term flexibility, the interior layout allows short term changes like daily regrouping of the teams for strategic and tactical performance of trading. The idea of flexibility and change overtime, requires that one thinks
of the organization in terms of network of independent flexible parts that comes together as a complex and adaptive system, it is bottom-up/ top-down organiza- tion between the parts and the whole.
Personal Workstation
At the conceptual stage the personal workstations were thought of as a fully equipped briefcase that was given to the employee at the time of his/her employment, and stored when not used in the thickening of the columns. The workstation in use clips on to the utility rail which supplies power, network, light, air and audio. The briefcase is capable of sliding across its length for tactical repositioning of teams of traders. The inside is as accommodating the dashboard of a luxury car, where one can adjust and fine tune one’s personal environment, such as air, volume and light.
Spatial Organization
Juxtaposing the striated spatial condition of the utility hoops, smooth and folded platform works cross grain its rigidity, achieving continuity and tying the space together both in plan and section. Boundaries and areas are defined by the layering of the platforms, such as the elevated reception, lounge furniture, the carpet and drop ceiling. The fluid, folded and pliant forms express the flexibility and robustness of the system
of the high-performance environment clearly reveals Cyrus corporate character is to accommodate the body and define space.