MEKONG
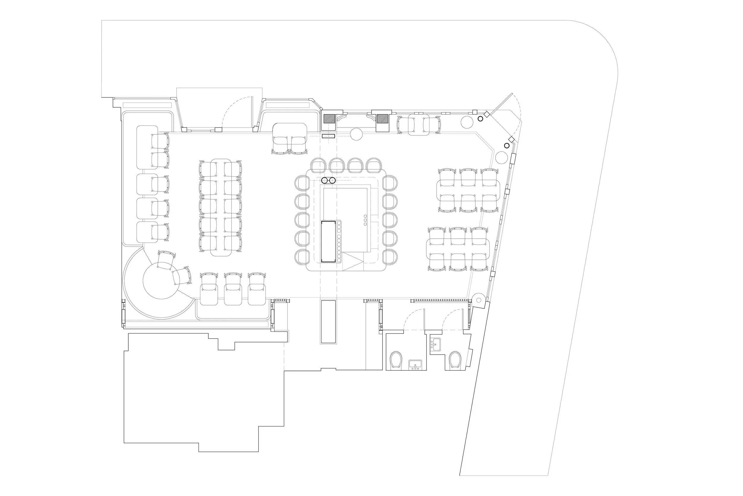
Mekong Bar & Bistro situated in the heart of Soho New York is a combination of a classic bistro with Vietnamese cuisine. The crowd is both local and long time regulars creating a relaxed and timeless meeting spot for the New York community.
Your Custom Text Here
Mekong Bar & Bistro situated in the heart of Soho New York is a combination of a classic bistro with Vietnamese cuisine. The crowd is both local and long time regulars creating a relaxed and timeless meeting spot for the New York community.