SMITH'S PENTHOUSE
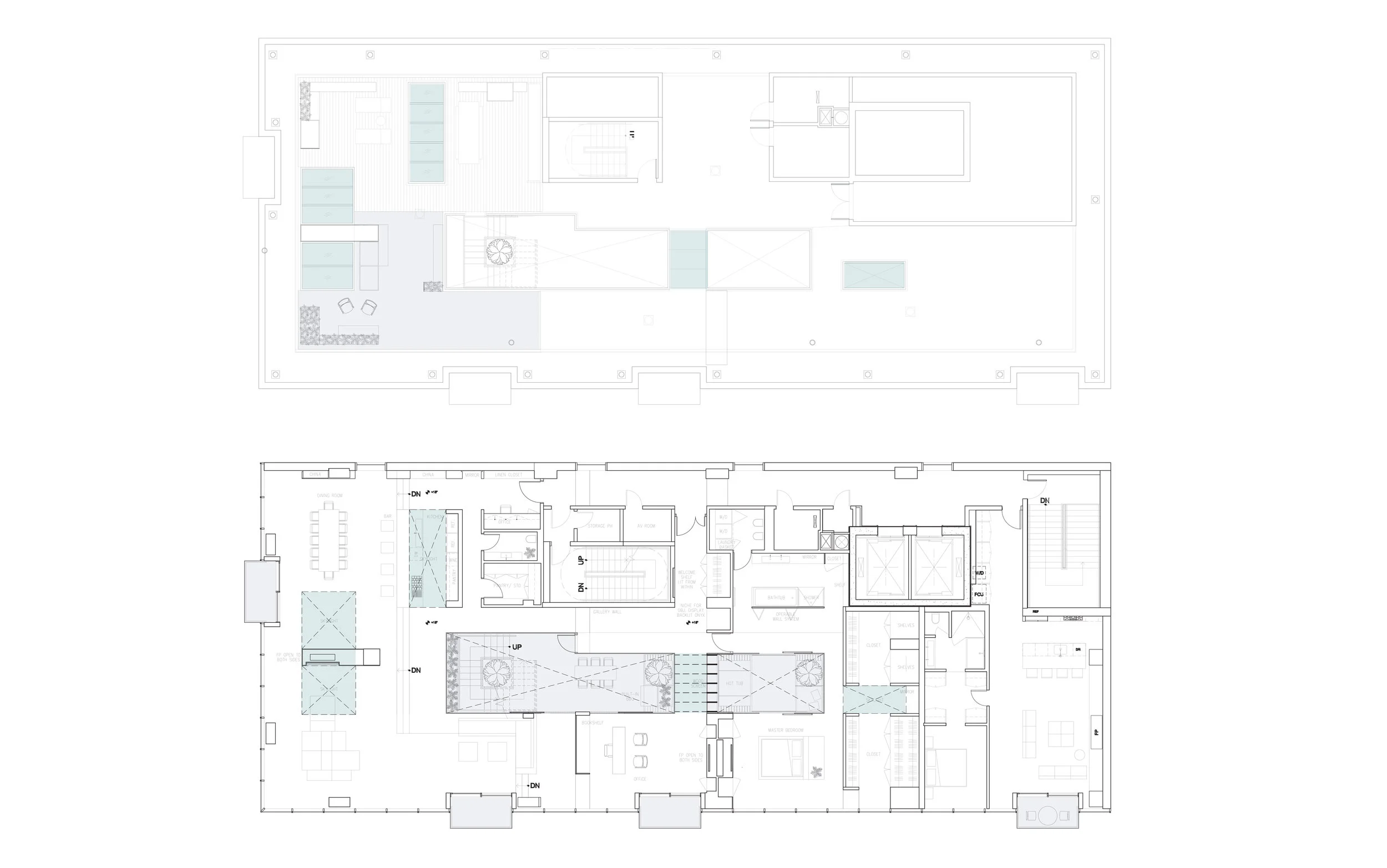
The Smith Penthouse is 4,500 interior square feet occupying the top floor and 1,500 square feet of roof garden in the newly developed union station district in Denver Colorado. The proposal explores shifting relationships of solid and void throughthe interplay of intersecting volumes creating an interior landscape with pocket gardens, skylights and wood boxes that house various program elements. At the entrance to the residence, a massive courtyardcut opens to the sky and city. The stair at the courtyard leads up to the roof garden.
Project in Development
4,500 sqft
