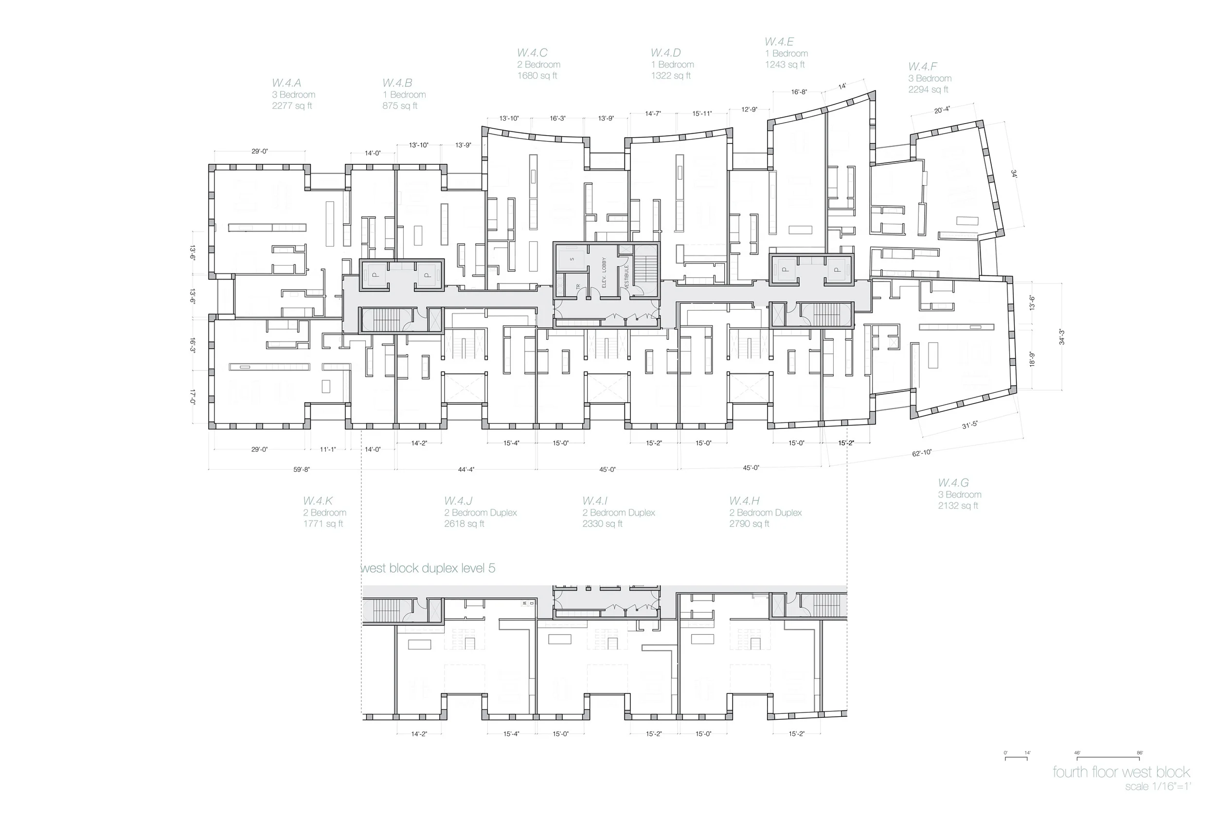
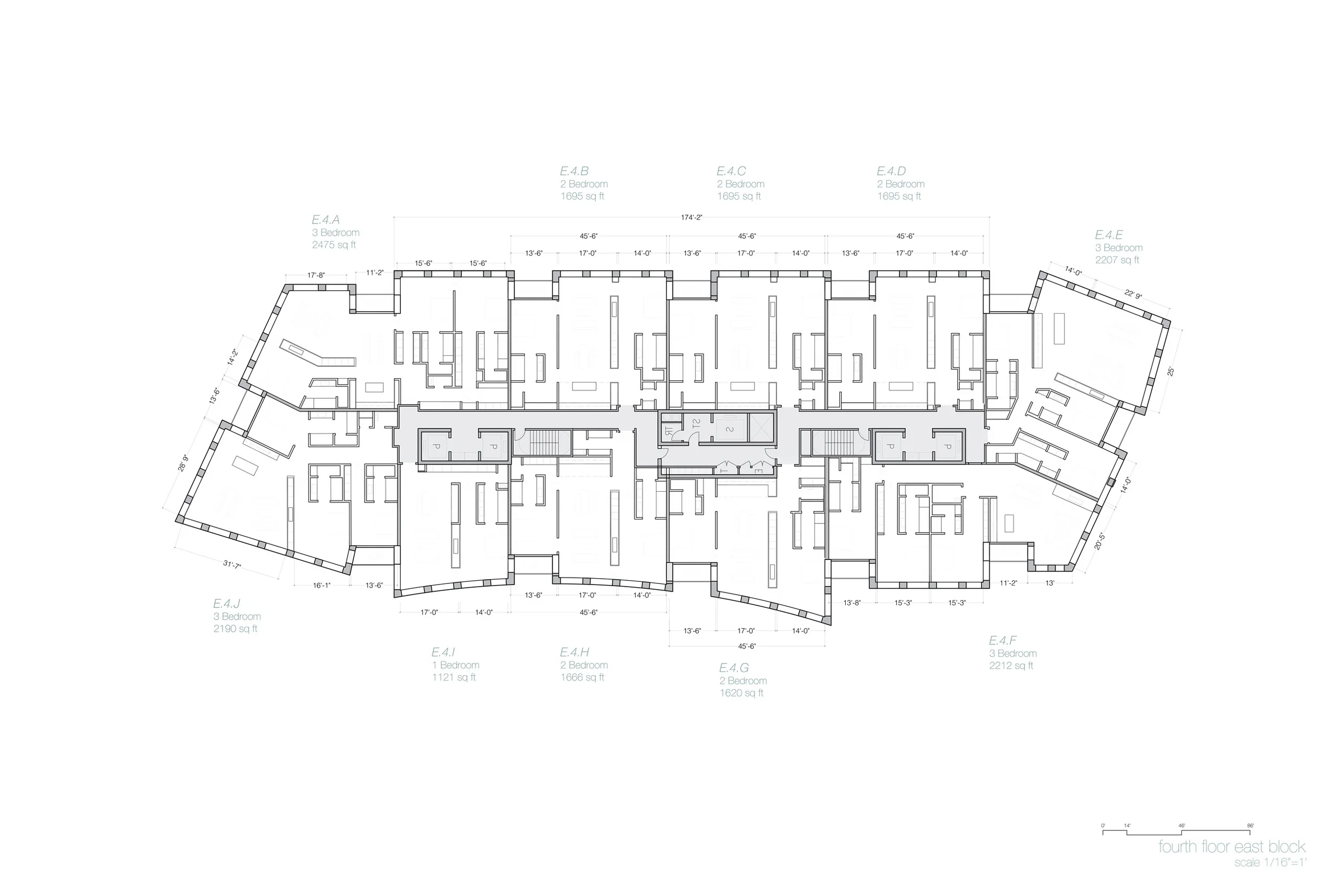
THE EMBARCADERO
A sophisticated sanctuary situated between the downtown business district and the vibrant waterfront, this building provides access to shops, restaurants, a farmer’s market, local public transportation and weekend escapes.
Pedestrian streets and lush courtyards provide privacy and connection to nature and community. This full service building offers many amenities including concierge services, library, private event spaces, a screening room, wine cellar and private dining at the corner brasserie. Residents may relax and unwind at onsite fitness, salon and spa facilities or at the nearby tennis courts and pools.
The architecture of the project draws on the character and material quality of the waterfront context. Materials are selected for their harmony with the historic piers and ferry building, their ability to weather and age gracefully, and their warmth and texture at a human scale.
Limestone gives a warm and timeless quality to the building’s base. Wood-frame windows and cast bronze railings provide a warm and finely-detailed scale to the building. Articulation of the facade allows for an interesting play of light and shadow while giving privacy to residents. In all aspects of building and interior design, sustainability is a priority. The project is pursuing a LEED Gold Rating.
