THE JAMES MIAMI
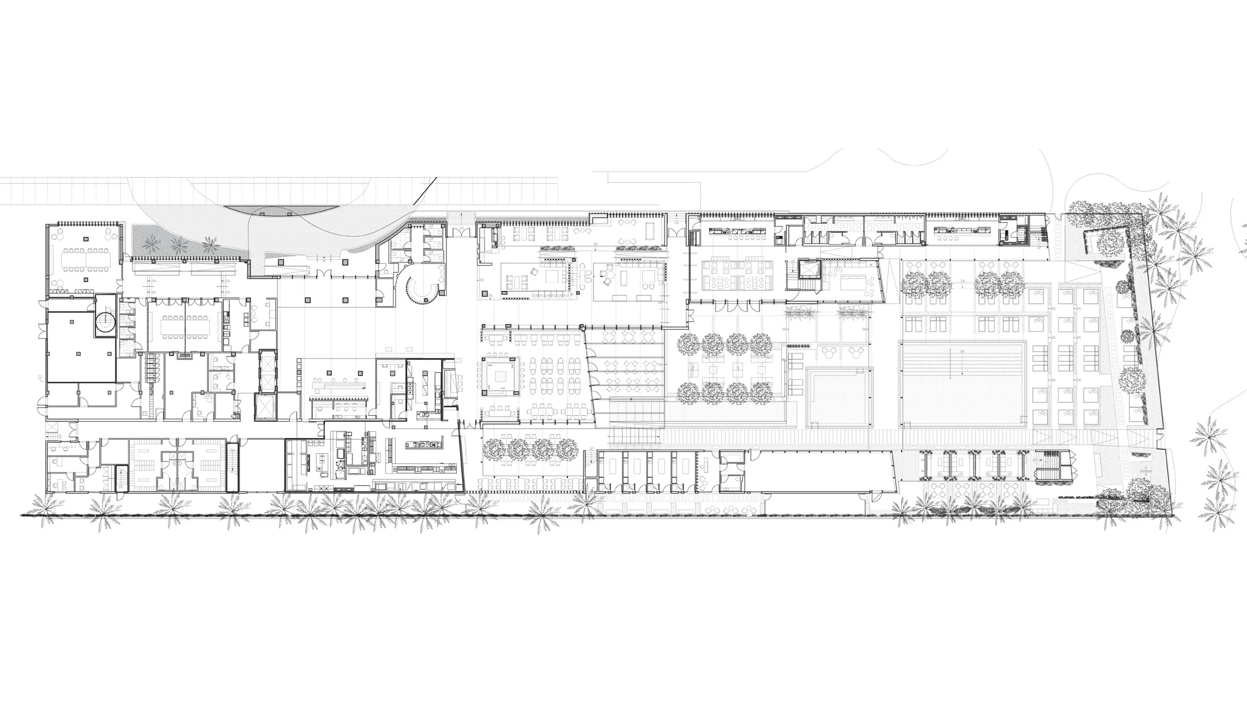
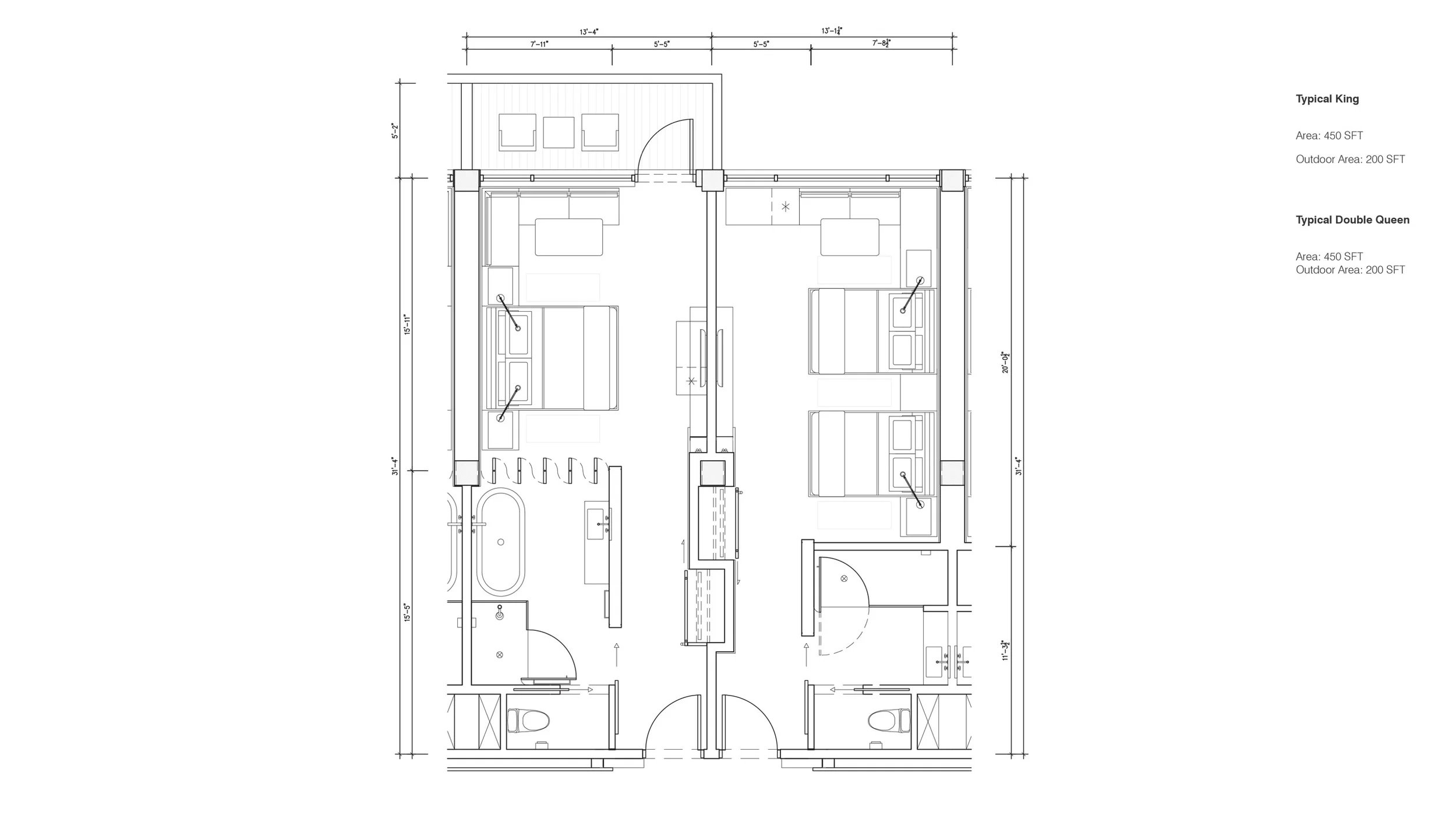
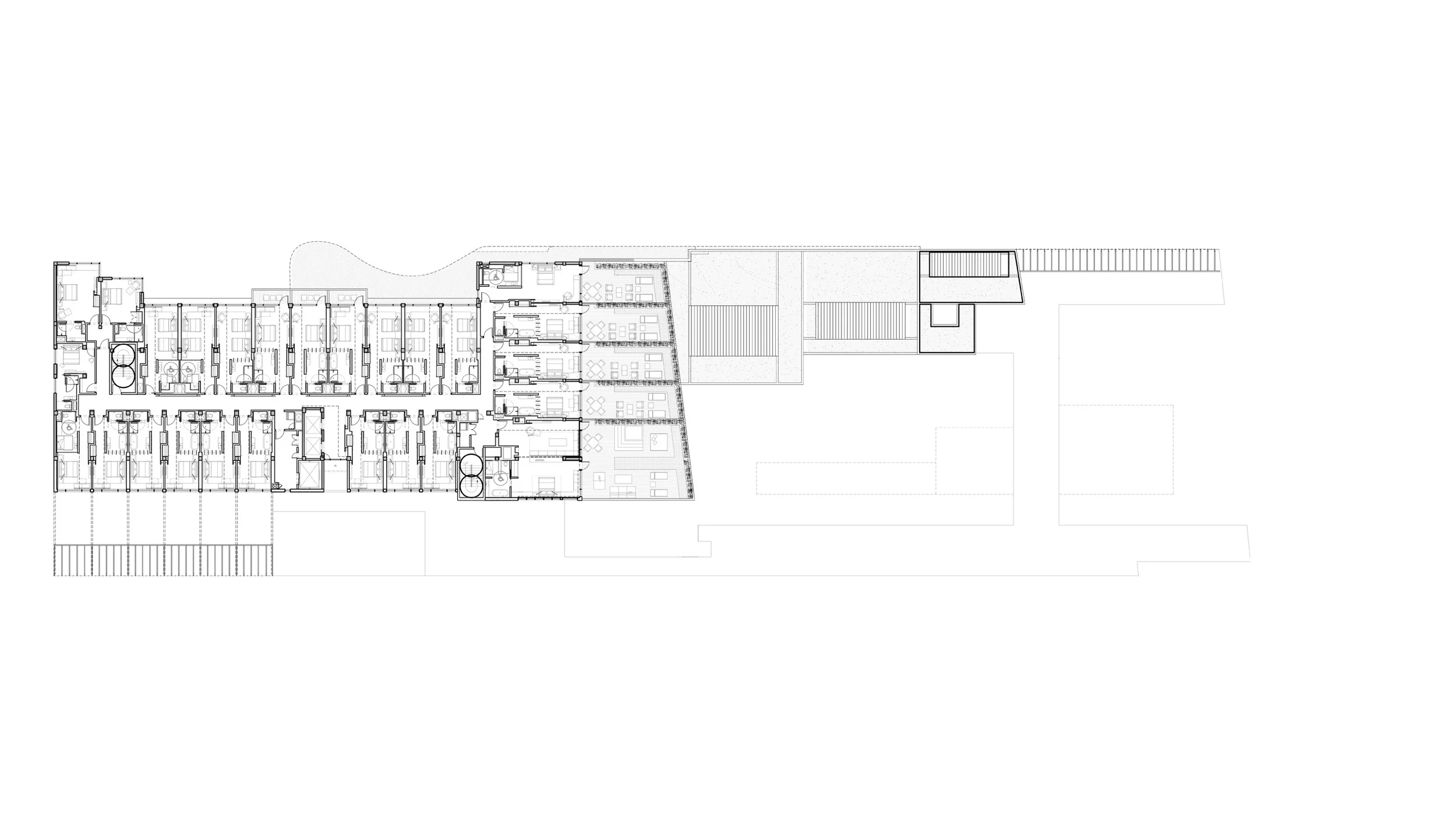
This project transforms a historic hotel interior from a series of dark, disconnected rooms to a light-filled luxury environment that creates horizontally-ordered spaces. The lobby is a progression of interlocking public areas with varied ceiling planes organized along a diagonal axis. In each guestroom, large louvers to the bathroom can be opened to create a single space. The design takes full advantage of views, and light-colored materials are used consistently to strengthen the link between inside and outside.
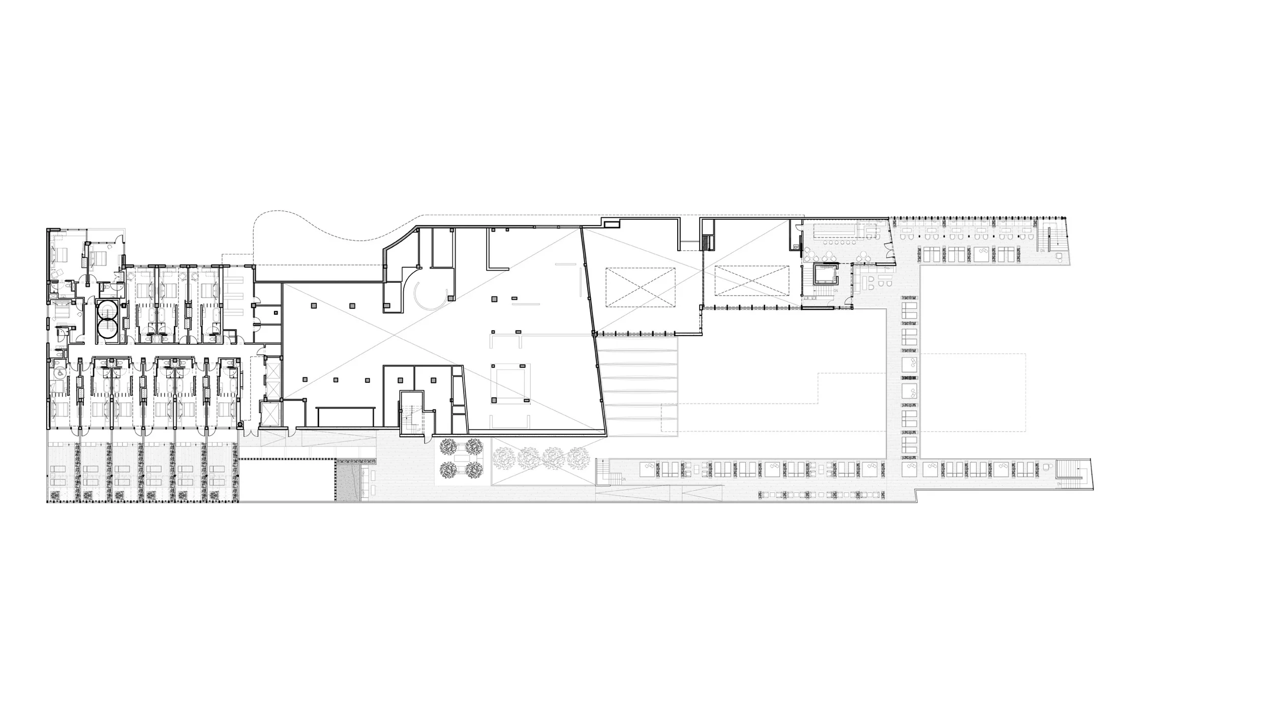
The outdoor pool and boardwalk area continues inside as a terraced landscape of public spaces with varied ceiling planes defining programmatic zones. The diagonal organization of interior zones provides views of the ocean beyond the adjacent exterior spaces. Light-colored materials, such as white terrazzo, light ash, and oak, are used consistently to strengthen the link between inside and outside.
Miami’s Art Deco District is renowned for the stark contours and streamlined forms of its unique architectural style. In this project, the old hotel’s public face is restored in accordance with the original design, while the interior is completely reconceived.
