THE JAMES NEW YORK
The task was to helped this boutique hotel refine its brand of casual American living, finding an architectural vocabulary appropriate for a new class of affluent travelers. The design language needed to express the hotel’s identity yet be flexible enough to be applied to both urban and resort contexts. The result was a design language of open, terraced spaces with natural, minimally-articulated materials.
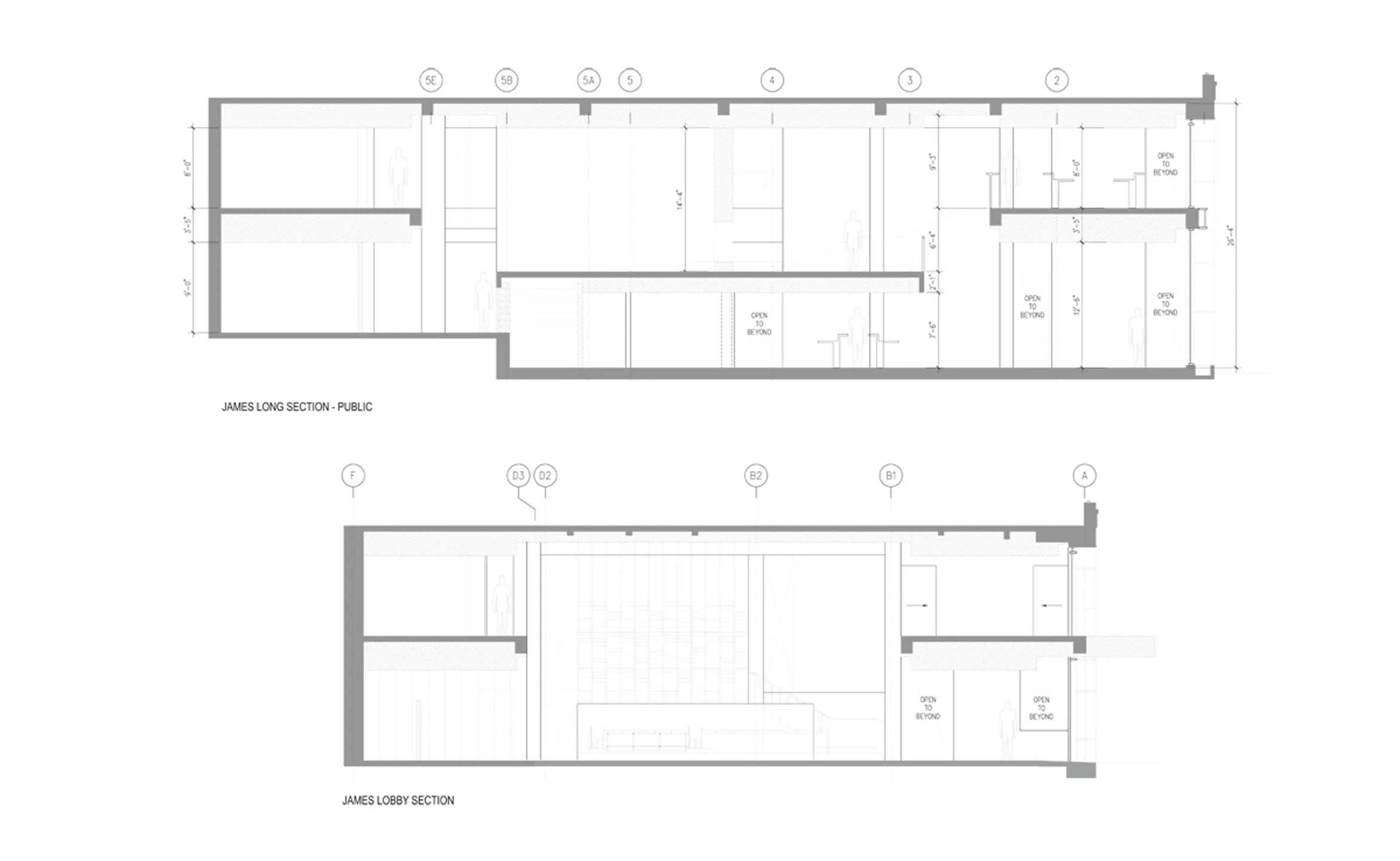
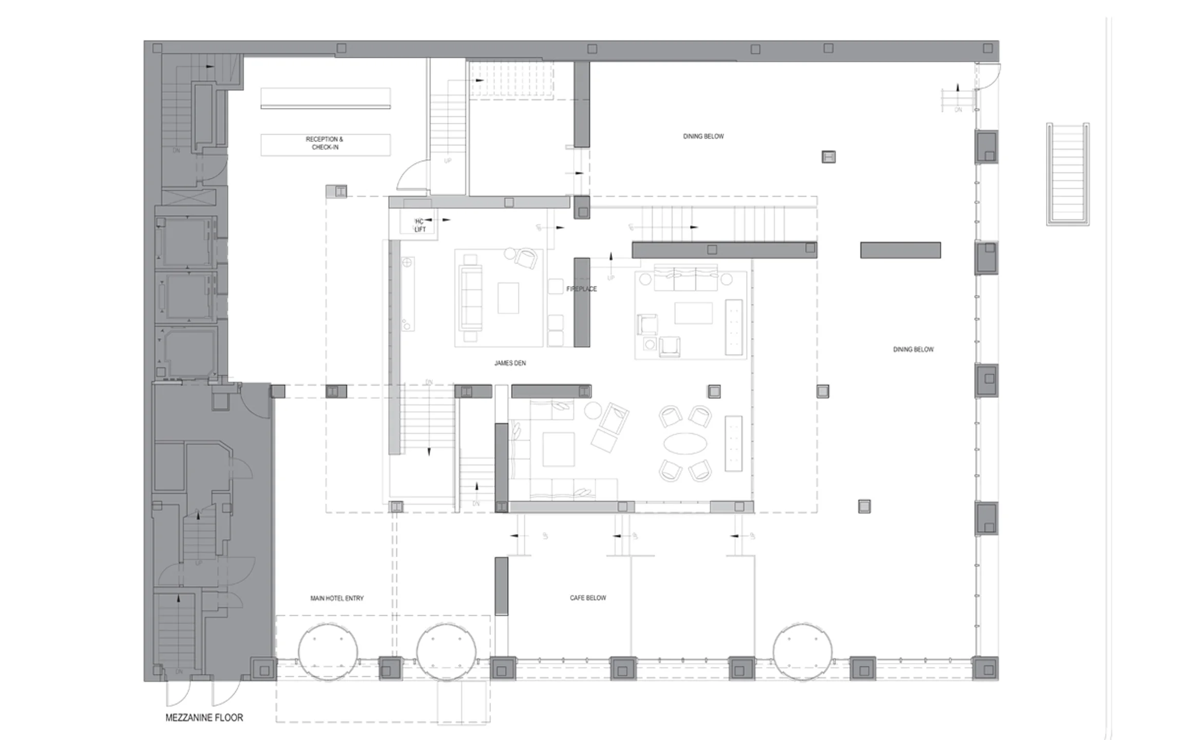
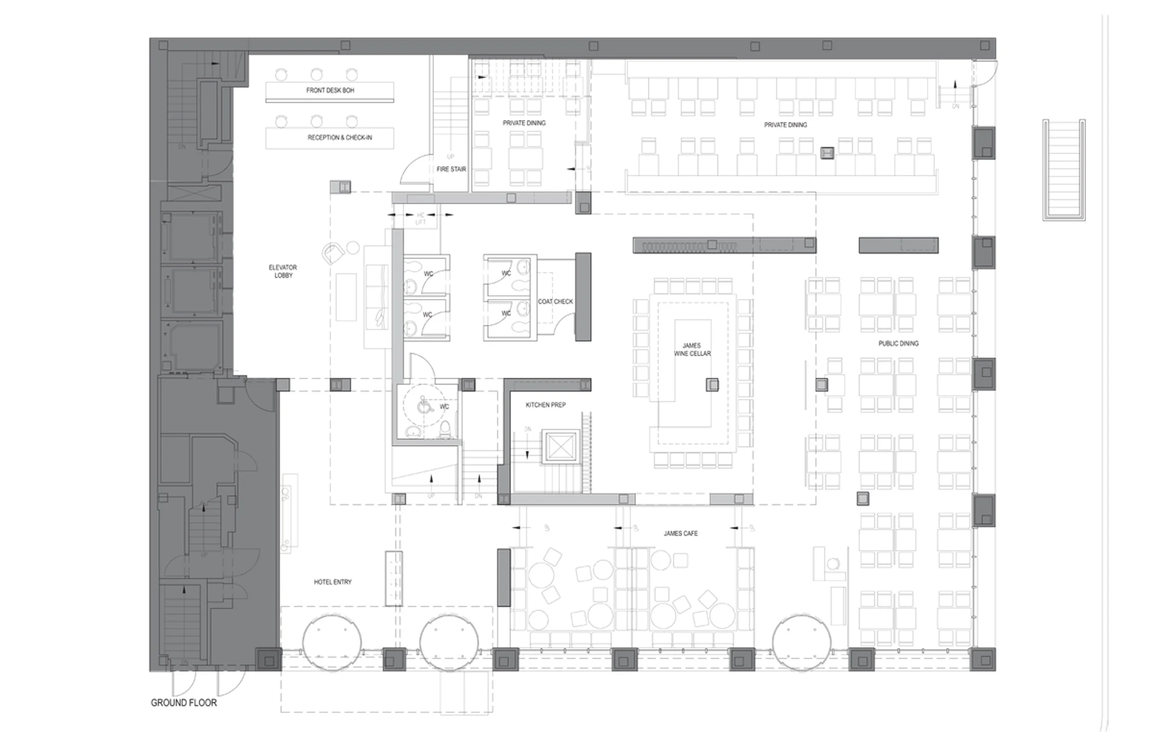
The New York design is organized vertically, using subtle material changes to smoothly distinguish between the hotel’s private accommodations, its social space, and the surrounding environment. An inviting, residential character is established by the lobby’s travertine floors, limestone walls, and rosewood ceilings, and continues upstairs with the warm tones of the guestrooms. The design’s public face uses planters filled with greenery to complement the revolving glass doors, forming an inviting screen. For this hotel’s boutique location in a historic building in New York, the company wanted to synthesize contemporary luxury with its philosophy of inclusiveness and environmental responsibility, giving guests an experience of earth-friendly comfort.
