PROJECTS
JOURNAL
STUDIO
Contact
Menu
IHRE VIKEN
GOTLAND
Phone Number
APPELQUIST ARCHITECTS
Your Custom Text Here
PROJECTS
JOURNAL
STUDIO
Contact
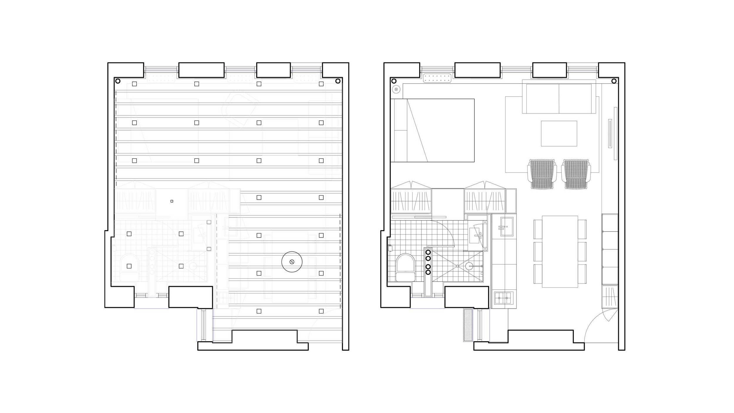
THOMPSON RESIDENCE
THOMPSON RESIDENCE
Compact living in soho.